華埔建筑裝飾工程有限公司——河南廣播電視臺都市頻道《都市愛家》欄目指定施工方
房小、人多、東西雜?別擔心,小胡子帶您看實景工地,做拆改攻略!今天呢,帶您走進花園里完工工地,業主已入住,我們來看看他們家是怎么做到大拆改、強收納的!
案例基本信息介紹:
小區:建業花園里海棠苑
面積:125平
戶型:三室兩廳
風格:后現代
設計師:柴春歌
造價:10萬
“我們平時工作比較忙,找裝修公司就是圖個省心。在定華埔之前,也看了幾家,但是在同等規模的裝修公司里邊,華埔的性價比是最高的,而且品牌做得也很好。
在做設計的時候,我和小柴溝通地比較多,因為家里面積比較有限,孩子們也都同住,對空間儲物的需求非常大。所以我們家跟其他業主相比,還是做了很大的改動的。我們也比較注重空間的質感,基本上都是按照小柴的設計來搭配的,尊重原創嘛,整體效果還是很滿意的。”——花園里海棠苑 · 業主余老師
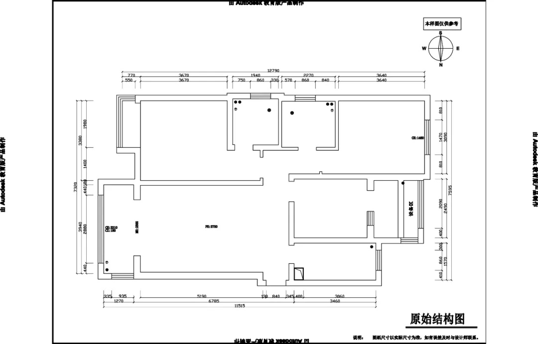
戶型改造
為了滿足業主對空間儲物的需求,設計師做了幾處改動:
(1)原戶型入戶廚房預留門的墻體改造成整體玄關柜;
(2)原次臥空間后退,規劃出餐廳;
(3)將次臥原有墻體改成廚房門,形成餐廳和廚房的便利流動線;
(4)主臥空間后移,主衛縮小,留出足夠的空間做整墻的衣柜。


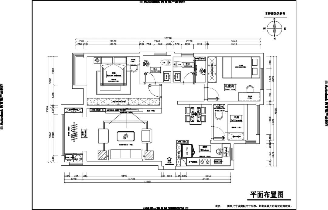
設計說明
如何在有限的空間內,盡可能完美地去迎合業主的需求,是本案設計的重點。
入戶
入戶是一個常規換鞋的區域,但本案是一個開門見廚房的戶型,沒有預留鞋柜,廚房內部也是沒有儲物和冰箱的位置。改造方案:設計師將原戶型中入戶廚房門那整面墻體砸掉,改成玄關鞋柜,做了上下分體,來滿足一家人鞋子的收納。
餐廚區
入戶進來就是次臥區域,緊挨廚房。而且原戶型中的次臥太過狹長,還沒有預留餐廳。改造方案:設計師將原來的次臥后退,做成一個小型的榻榻米空間,靠廚房區域則讓位餐廳。同時把廚房門改在餐廳后方墻體處,設計成推拉門,這樣不會影響到廚房內的采光。
整個空間的設計比較簡單,主要是滿足功能需求。簡單的吊頂,純色的墻體,大快朵頤的生活。
客廳
客廳是滿載生活氣息的區域,我們敲門做采訪的時候,業主家小姐姐正在跳電競舞,再看桌上的小零食,這絕對是一個熱愛生活的家庭。客廳,我們入眼看到的硬裝部分是比較純素的,因為是中央空調,家里東西又多,為了不顯得太過擁擠,頂面做了簡單的處理,以一組主燈作為唯一光源。電視墻是以石材+儲物格的方式做設計,預留出魚缸的位置,將家里一些零散的物品收納。
不容忽略的是軟裝的搭配,藍色、咖色、黃色,皮質、布藝,沙發的選擇讓整個空間都很出彩,充滿了質感。

陽臺
陽臺和客廳是開放設計,通過薄紗窗簾做簡單的隔斷。業主是一個茶藝愛好者,一方茶幾,訴說情懷。

主臥
業主對儲物的需求比較大,想要一整面床頭背景墻,還要能放下梳妝臺、床頭柜。而原本的主臥空間有限,主衛又略大,需要做一些調整。
方案改造:將主臥整體空間后移,并且縮小主衛,達到主臥空間最大化。臥室以純色為主,讓睡眠簡單化、幸福化。

兒童房
兒童房個性、時尚,臟粉與肉粉的墻漆劃分,上下鋪的合體設計,不同需求的衣柜,讓整個空間大放異彩。當小朋友席地作畫,以兒童房做景,這畫面好溫馨!

別墅大宅
企業簡介
誠聘英才
聯系我們
裝修知識
完工實景
報價速算
裝修貸款
友情鏈接 : 電梯安裝公司