華埔建筑裝飾工程有限公司——河南廣播電視臺都市頻道《都市愛家》欄目指定施工方
印象中的范老師是一個碰撞體,她有著向內而生的優雅,又可以快言快語般幽默,這種交織呈現的魅力,總能帶給人意想不到的歡樂和驚喜。就像今天要給大家分享的這套完工實景,充滿了驚艷與儀式感。
案例基本信息介紹:
小區:西湖美景
面積:220平
戶型:復式
項目:二手房全改
風格:美式輕奢
設計總監:馬永亮
金牌項目經理:馬志勇
造價:40萬(999套餐+拆改+個性化+定制)

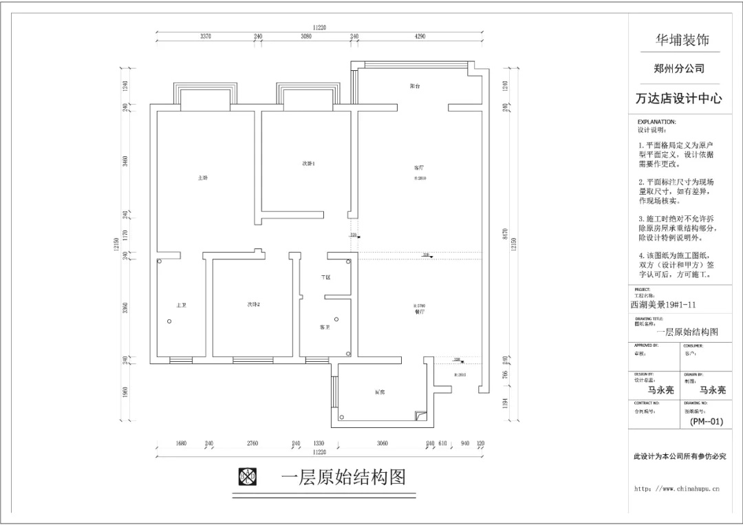
這是一套二手房改造,設計師根據業主范老師的生活習慣以及喜好,對這個復式空間做了一定的改造。
(1)廚房外側入戶閑余空間做定制鞋柜;
(2)原開放式客餐廳,以石膏板做隔斷,劃分功能區;
(3)原一樓走廊盡頭主臥門改到側面,原入戶門后方空間改作梳妝臺;
(4)原主臥衛生間改成衣帽間;
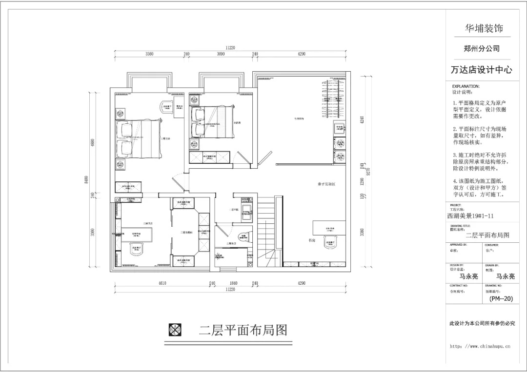
(5)二樓挑高空間改為書房和親子互動區;
(6)露臺1改作生活陽臺;
(7)原露臺2預留門體封住,改到墻體中間,原次臥3改成二樓主臥,并融合原露臺2與原次臥3空間,做成主臥大套間。





注入細膩的情感,演繹不一樣的奢華!客廳,是對美式與輕奢的梳理與吸納。簡化的石膏線,光潔的石材,布藝沙發,金屬元素,奢華的質感,讓空間自然而然地發生碰撞。




餐廳選用傳統的圓形桌位,簡雅的配色,溫馨的陳設,暖暖的儀式感。

廚房里,滿是想念的味道......國人的情感里,是帶著煙火氣息的,煎炒烹炸,端起的就是人間美味,可以忘卻所有的疲憊。本案廚房做了一個L型設計,黑白灰配色,流暢的洗切炒動線,合理的空間布局,讓烹飪更加舒適化。

為了更好的陪伴孩子,一樓和二樓都設計了主臥套間,兼容梳妝臺、衣帽間。“當窗理云鬢,對鏡貼花黃”,精致生活從精致的自己開始。主臥采用高級灰做主色調,亮黃、金屬色局部點綴,讓空間更加跳躍,更有層次感,盡顯奢華的品質。


(一樓主臥)



(二樓主臥)
藍色是冷靜的代表色,與莫蘭迪灰的調和,是想營造一個平靜、舒緩的睡眠空間。窗簾加入黃色點綴,是要給寶寶更加溫暖、更有安全感的氣息。
灰的時尚,粉的柔美,輕盈而不失光澤。公主房撲面而來的甜美,少女氣質的可愛單純,讓這個簡約大方的空間,泛透著輕奢風采的優雅知性。


客房即多功能房,榻榻米+書桌+衣柜,純凈的著色,實用的搭配,明窗凈幾舒華茵。


“你逆光而來,配得上世間所有的美好”......每個孩子都是上帝派到父母身邊的天使,我們要有足夠的愛和陪伴去溫暖他們。范老師把二層的挑高空間做成了親子互動區,當伏案筆耕之時,能感受到寶寶的嬉笑玩鬧,這是她最大的滿足。


“綠的風,綠的樹枝。船在海上,馬在山中。影子裹住她的腰,她在露臺上做夢”。每個人心中都有一個關于大露臺的向往,但范老師把細碎的生活拋撒給了它。陽光房、洗衣房、休閑室,在這里譜寫了一首叫做生活的詩篇。

別墅大宅
企業簡介
誠聘英才
聯系我們
裝修知識
完工實景
報價速算
裝修貸款
友情鏈接 : 電梯安裝公司