華埔建筑裝飾工程有限公司——河南廣播電視臺都市頻道《都市愛家》欄目指定施工方
簡約不僅是一種風格,更是一種高級的人生態(tài)度。它可以呈現簡單溫馨的生活場景,給人簡潔舒適的生活感受。
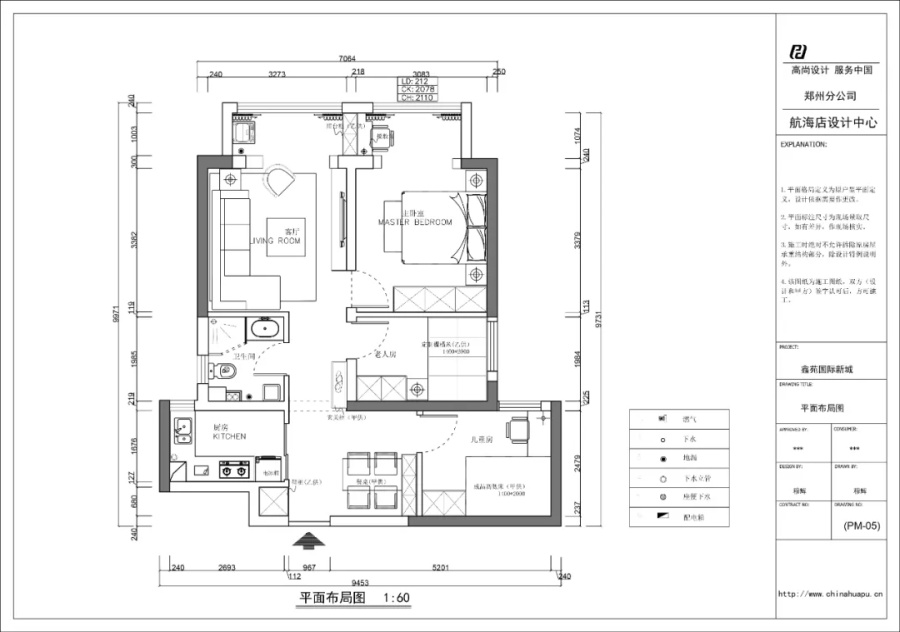
案例基本信息介紹:
小區(qū):鑫苑國際新城
面積:89平
戶型:三室兩廳
風格:現代簡約風
設計師:穆輝
造價:11萬(999套餐+個性化+定制)

這個小三房常住一家三口,兒子在讀高中,對儲物的要求比較高。為了提升居住的舒適度,設計師對空間做了微調。
(1)原客廳陽臺和主臥陽臺是一體的,現以墻隔斷,分別做功能區(qū);
(2)廚房做了一個L型動線,將冰箱內嵌。


空間整體定位簡約,以灰白著色,原木填充,回歸自然的淳樸,享受生活的本真。
“當時看到設計的時候,我一眼都相中了這個電視墻,就跟設計師說我一定要做這個”。業(yè)主耿姐對客廳的需求,就是簡化空間、滿足功能。這個電視墻著色素雅,不僅可以展示和儲物,還是空間的一個調和劑,不顯得那么單調。

餐廳設在入戶,毗鄰廚房,可以有一個流暢的用餐動線。四人位的餐桌椅,浪漫實用的酒柜,還有花瓶點睛,處處留情,處處皆溫情。

廚房是L型空間,淡藍色的柜體,給人甜心的視覺感。就像烹飪出的美食一樣,勾魂攝魄。

主臥小碰撞,有清新的淡綠色,有高貴的愛馬仕橙,有暖色的木地板,還有可以休閑的陽臺......

上下鋪+衣柜+拐角書桌,每一個尺寸都卡的嚴絲合縫,把兒童房空間做到了最大化利用。

次臥做了榻榻米,不大,但夠溫暖、夠實用。

“我家呈現的感覺就是簡約而不簡單,家里的每一個尺寸卡的都剛剛好,非常合適。”小三房要同時兼?zhèn)淇?/span>
間、功能、儲物,還要滿足舒適化居住的要求,是非??季吭O計和施工的。
別墅大宅
企業(yè)簡介
誠聘英才
聯系我們
裝修知識
完工實景
報價速算
裝修貸款
友情鏈接 : 電梯安裝公司