華埔建筑裝飾工程有限公司——河南廣播電視臺都市頻道《都市愛家》欄目指定施工方

時光凝聚美好,匠心磨礪品質。歷經上千個日夜的的精琢細磨,所有美好和期待都如約而至。在心歸家至的喜悅中,碧桂園?鳳凰城一期業主迎來新房圓滿交付。

▲ 碧桂園鳳凰城小區環境實拍






▲ 碧桂園鳳凰城小區環境實拍
★ 華埔裝飾恭祝業主們開工大吉 ★

▲ 碧桂園鳳凰城小區業主集體開工
從鳳凰城開建、成型到交付,華埔裝飾一直扎根小區做深度服務。華埔裝飾西大區店長、總監楊龍超對選擇和信任華埔裝飾的45家鳳凰城業主深表感謝。華埔裝飾擁有龐大的規模和服務體系,無論從工人、材料還是服務,我們都能及時觸達,為集體開工的業主做好工程品質和施工保障。

▲ 華埔裝飾西大區店長、總監楊龍超
華埔裝飾工程部經理龐玉龍帶領項目經理團隊宣誓,對工程品質做鄭重承諾。我們將嚴格恪守華埔綠金剛工程標準施工工藝,秉承品質、專業、嚴謹的態度,高標準、嚴要求,做出優良的品質,給客戶一個放心的家、滿意的家。

▲ 華埔裝飾工程部經理龐玉龍

▲ 項目經理宣誓
踏實、認真,是鳳凰城業主劉老師對華埔最初的印象。劉老師講到,很多年前都聽說過華埔裝飾,能做到現在必定有著自己的口碑和優勢。后來也多方對比過,華埔的品牌優勢、品質保障、設計師專業水準、高性價比的報價,都推動了我義無反顧的選擇。作為業主,劉老師也提出了自己的建議和要求,希望華埔服務第一,生意第二,裝修過程中保質保量保進度,出現問題及時協調解決,保障工期的順利進展與工程的品質落地。

▲ 碧桂園鳳凰城小區業主代表劉老師
★ 碧桂園鳳凰城方案效果參考 ★
想必在交房前,大家都無數次暢想過新家未來的模樣吧?是功能實用的現代風?是溫婉大氣的簡約風?是溫柔夢幻的奶油風?還是端莊優雅的新中式?......

▲ 碧桂園鳳凰城業主部分簽約數據
早在交房前,華埔裝飾就已經入駐碧桂園鳳凰城小區做社群開發服務,從小區施工進度播報、周邊設施環境到戶型的實地測量以及團隊方案研討,共同為新家五彩斑斕的生活做了無數的努力。
目前,碧桂園鳳凰城全套戶型方案已經非常成熟,如果您還在觀望,或者對新家沒有清晰的藍圖和規劃,不妨來華埔裝飾一站式了解,我們為您的新家裝修保駕護航。
【89㎡方案效果】
▲ 碧桂園鳳凰城89㎡ 原始結構圖

▲ 碧桂園鳳凰城89㎡ 平面布局圖
- 89㎡效果預覽 -




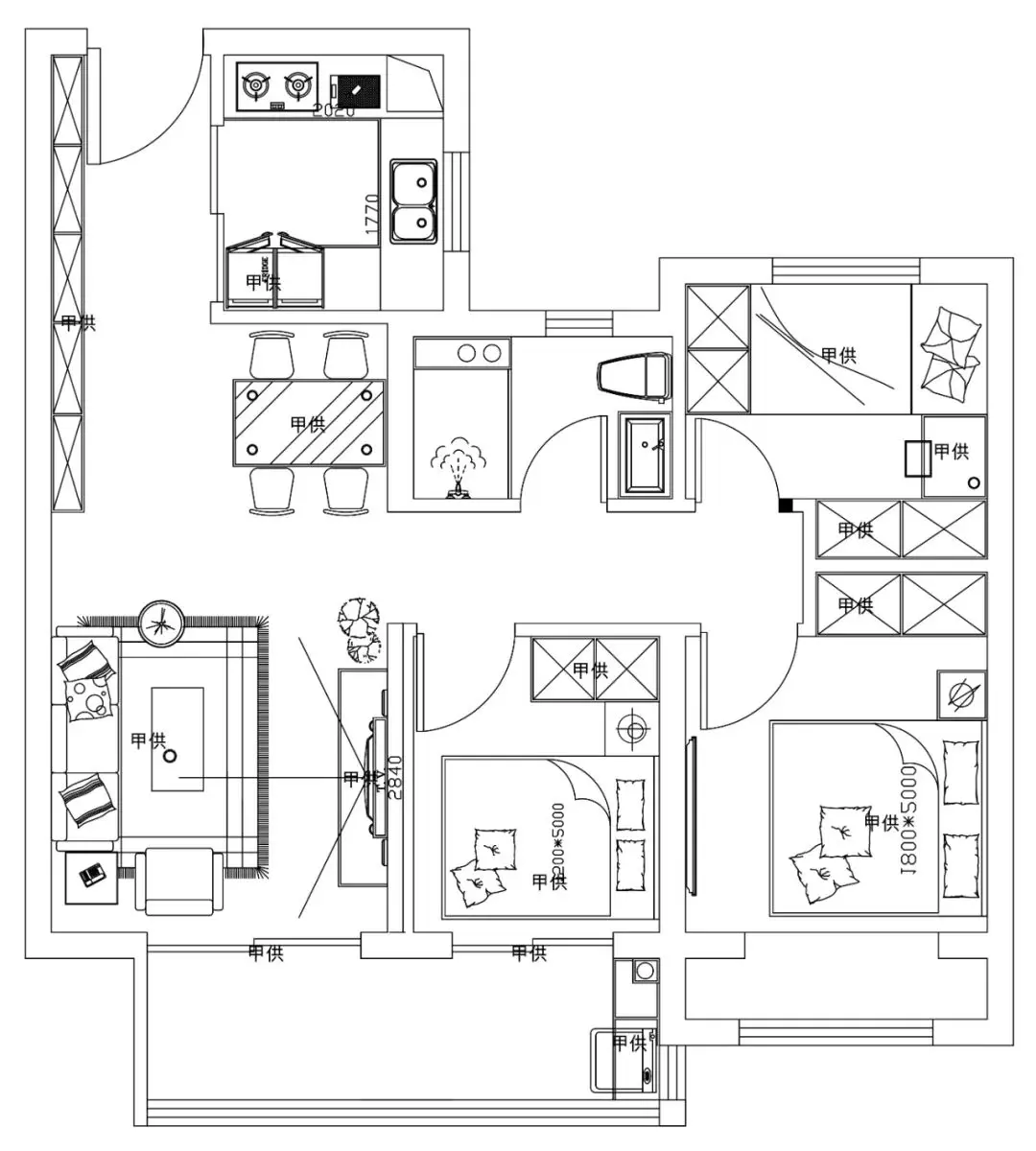
【115㎡方案效果】
▲ 碧桂園鳳凰城115㎡ 原始結構圖
▲ 碧桂園鳳凰城115㎡ 平面布局圖
- 115㎡效果預覽 -





【115㎡方案效果】
▲ 碧桂園鳳凰城115㎡ 原始結構圖
▲ 碧桂園鳳凰城115㎡ 平面布局圖
- 115㎡效果預覽 -





別墅大宅
企業簡介
誠聘英才
聯系我們
裝修知識
完工實景
報價速算
裝修貸款
友情鏈接 : 電梯安裝公司